회원가입
로그인
고객센터
매거진
공모전
전시행사
커뮤니티
전체메뉴
뉴스
인터뷰
리뷰
특집
월드리포트
제휴매체
전체보기
일반
대학(원)생
청소년
어린이
15일 이내
30일 이내
30일 이상
정글톡톡
디자인장터
인기검색어
내 최근검색어
본문영역
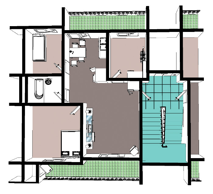
CAD
16-03-22
0
0
0
모든작품 보기
|
이메일 보내기
조혜진
다른작품보기
황해
미스터 아이돌
건축학개론
나는 왕이로소이다
댓글
0
전체 댓글 보기
×
허위 신고일 경우 신고자의 서비스 활동이 제한될 수 있습니다.
광고/음란성 댓글
욕설/비방/부적절한 단어
분란 유도/지나친 논쟁 유도
도배/기타